Albufeira, Central Algarve 4 bed Plot / Land in Albufeira, Central Algarve

€310,000
Ref: PMAD6095

Agent


Albufeira, Central Algarve 4 bed Plot / Land in Albufeira, Central Algarve

€310,000
Ref: PMAD6095
  • Bedrooms 4
  • Bathrooms 4
  • Living Area 273 m²
  • Plot Area 691 m²
  • Type Plot / Land
  • Energy Class n.a.
Albufeira: Land for Sale with Endless Potential
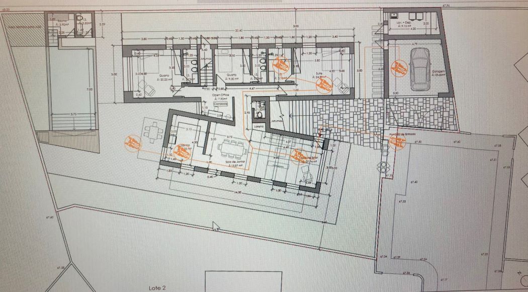
Looking to build your dream home in Albufeira Vale da Ursa a tranquil and green area, just minutes away from the vibrant center of Albufeira? Look no further than this exceptional plot of land located in Vale da Ursa. Sold with an executed project and the necessary license, this plot offers the perfect opportunity to create a stunning single-family house with two floors.

The ground floor of the planned house features a spacious entrance hall/open office, a comfortable lounge/dining room, a well-appointed kitchen, a bathroom, and three en-suite bedrooms. The upper floor can be accessed from both the interior and an outdoor terrace. It boasts a luxurious en-suite bedroom with a roof terrace, as well as a vast game room that offers endless entertainment possibilities. Additionally, there is a top terrace with technical areas and ample space to soak up the breathtaking views and sunshine.

Surrounded by a beautiful garden and generous terraces, this villa promises a harmonious blend of indoor and outdoor living. A closed garage provides secure parking, while the swimming pool, complete with a technical area and storage space, offers a refreshing oasis for relaxation and enjoyment.

Investing in a plot of land in the esteemed urbanization of Guia, Albufeira, comes with numerous advantages. Firstly, these plots often possess a higher upside potential compared to other areas, particularly when there is significant interest in real estate investments in the region. This means that the value of your lot can appreciate over time, providing an excellent return on your investment.

Furthermore, investing in a lot in urbanization grants you the opportunity to design and construct the house of your dreams, tailored to your unique preferences and needs. Guia, a serene town in the Algarve, Portugal, offers a peaceful environment just minutes away from the stunning beaches of Albufeira and enjoys convenient access to major highways. Whether you seek a holiday home or a permanent residence, this location proves advantageous.

Urbanizations typically offer complete infrastructure, including water, electricity, sewage, and public lighting, streamlining the construction and development process. Moreover, the Algarve is a highly sought-after tourist destination, making it possible to rent the property to other investors or generate income by renting the house to vacationers, adding further appeal to this investment opportunity.

Diversify your investment portfolio with this tangible asset, offering long-term returns. Invest in this remarkable plot of land in Vale da Ursa and turn your vision of a dream home into a reality.

Contact us today to view



Popular searches