Urban land for construction. Plot with 240 m2.
The land has a prior information request (PIP) approved by the city municipality, and the project can be adapted to your ideas or budget. The area where the building is to be built is already served by a public thoroughfare, domestic water supply and sewage network, as well as telecommunications and electricity network, and is only connected via branches.
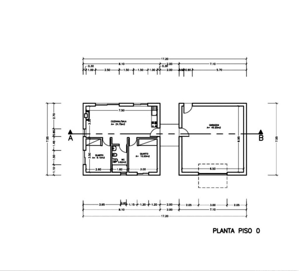
The approved project has the following construction areas:
- gross construction area: 129.86 m2
- useful construction area: 97.37 m2
- implementation area: 129.86 m2
- volume: 671.30 m2
- template: 3.5 m
- number of floors below the threshold level: 0
- number of floors above the threshold level: 1
Very well located, with a panoramic view at the foot of the “Serra de Montejunto.” A very special place for those looking to live close to nature and have a house in the countryside. Located in a residential area, you can enjoy the peace and quiet after a day's work, marveling at the magnificent sunset. This beautiful place has a lot to offer besides the mountains, it has a protected green park in the hills. You are just a few minutes from the village of Cadaval, where you will find all the services available, schools, supermarkets, shops, etc.
There is also the famous Buddha Eden gardens nearby.
15 minutes away you have access to the main highways: A8 (Lisbon/Leiria) and A1 (Lisbon/Porto).
It is also 20 minutes from Torres Vedras, 20 minutes from Caldas da Rainha, and 20-30 minutes from the west coast beaches: Nazaré (city of the “Big Wave”), Peniche, Baleal and Santa Cruz (world surfing cities) and Foz do Arelho and Areia Branca.
Book your visit now and start planning your dream home here!
#ref: 136616
We use cookies on our website to distinguish you from other users. We use this data to enhance your experience and for targeted advertising. By continuing to use our website you consent to our use of cookies. For more information, please see our Cookie Policy.